首 頁
主營業務
EPC項目
景觀規劃
住宅區景觀規劃
風景區景觀規劃
公園/廣場景觀規劃
酒店/別墅景觀規劃
河道景觀規劃
道路景觀規劃
產業園/廠區景觀規劃
學校景觀規劃
萌寵樂園景觀規劃
建筑設計
工業地產
住宅小區
醫療康養
行政/商務辦公
商業/展示空間
學校設計
幕墻設計
古建設計
BIM設計
室內設計
展館設計
酒店/民宿室內設計
公共建筑室內設計
辦公區室內設計
廠區/產業園室內設計
別墅室內設計
餐廳室內設計
金融空間設計
樣板房室內設計
私家會所室內設計
亮化設計
城市規劃夜景照明
美麗鄉村夜景照明
文旅古鎮夜景照明
景觀公園夜景照明
人文建筑夜景照明
橋梁高架夜景照明
文旅舞美
工程監理
造價咨詢
燃氣熱力
燃氣工程
熱力工程
園區運營
工程施工
壓力管道
案例實景
景觀設計
規劃設計
建筑設計
室內設計
特色小鎮
田園綜合體
創意水秀
亮化設計
美麗鄉村
文化旅游
特色小鎮
美麗鄉村
田園綜合體
創意水秀
宣傳視頻
新聞資訊
中標信息
行業動態
案例賞析
企業公告
公司年鑒
關于我們
公司介紹
公司業績
設計報價
設計流程
招賢納士
聯系我們
返回
您所在的位置:
首頁
>
項目設計
>
景觀規劃
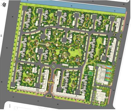
> 江蘇南京北外灘水城十九街區景觀設計
江蘇南京北外灘水城十九街區景觀設計
瀏覽量:4874 次
發布日期:2016-10-31
上一條:
瑞江瀛洲花園室外景觀工程設計
下一條:
河南三門峽博豐明鉆二期住宅景觀設計
景觀規劃
建筑設計
室內設計
亮化設計
工程監理
造價咨詢
燃氣熱力
園區運營
工程施工
壓力管道
EPC項目
推薦項目
安徽亳州世紀千府譙東鎮大寺村美麗鄉村規劃設計
無錫錫山八佰伴生活廣場
廣西扶綏縣南湖濕地公園景觀設計
天長唯一一處紅色文化大遺址【龍崗古鎮】
平陽縣新興產業園綠地景觀工程設計
走進銘揚
公司介紹
公司業績
設計報價
設計流程
招賢納士
聯系我們
主營業務
EPC項目
景觀規劃
建筑設計
室內設計
亮化設計
工程監理
造價咨詢
燃氣熱力
園區運營
工程施工
壓力管道
案例實景
景觀設計
規劃設計
建筑設計
室內設計
特色小鎮
田園綜合體
創意水秀
亮化設計
美麗鄉村
文化旅游
特色小鎮
美麗鄉村
田園綜合體
創意水秀
宣傳視頻
視頻欣賞
新聞資訊
中標信息
行業動態
案例賞析
企業公告
公司年鑒
集團介紹
項目設計
經典案例
招賢納士
地址:
浙江省杭州市上城區市民街69號銘林金融中心B座5樓
全國統一服務熱線:
0571-56235720
商務手機:
15990086638
關注我們
Copyright ? 2022 MINGYANG GROUP
浙ICP備15036312號-1
聯系電話:159 9008 6638
首頁
走進銘揚
主營業務
實景案例
更多